fermer
logement-101

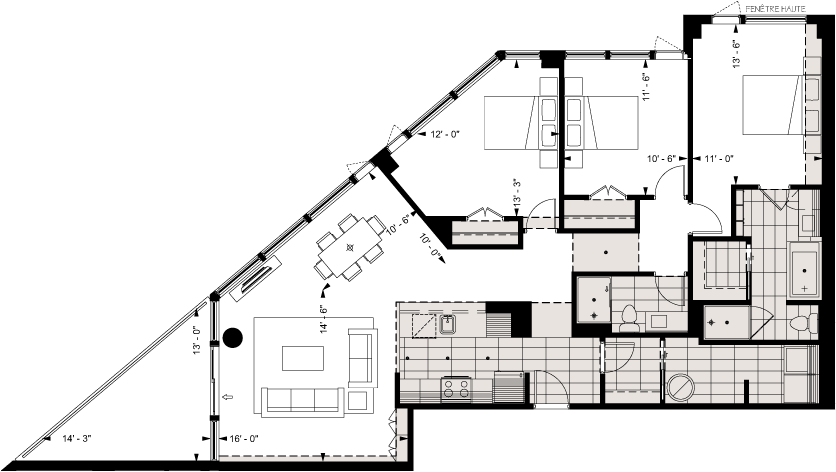
Unité 101

3 chambres

Superficie construite (brute) 1469 p.c.
Superficie habitable (nette) 1360 p.c.
Superficie terrasse 118 p.c.

télécharger le PDF