fermer
logement-114

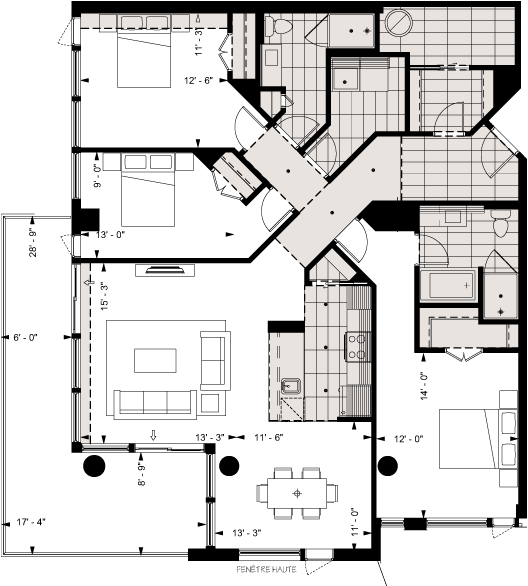
Unité 114

3 chambres

Superficie construite (brute) 1674 p.c.
Superficie habitable (nette) 1548 p.c.
Superficie terrasse 272 p.c.

télécharger le PDF