fermer
logement-303

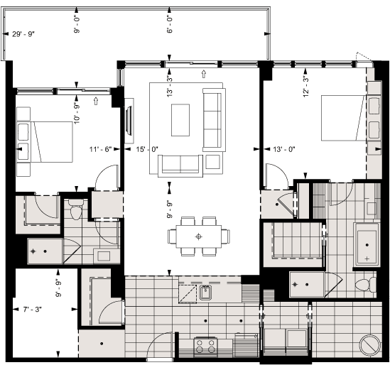
Unité 303

2 chambres + bureau

Superficie construite (brute) 1362 p.c.
Superficie habitable (nette) 1275 p.c.
Superficie terrasse 215 p.c.

télécharger le PDF