fermer
logement-312

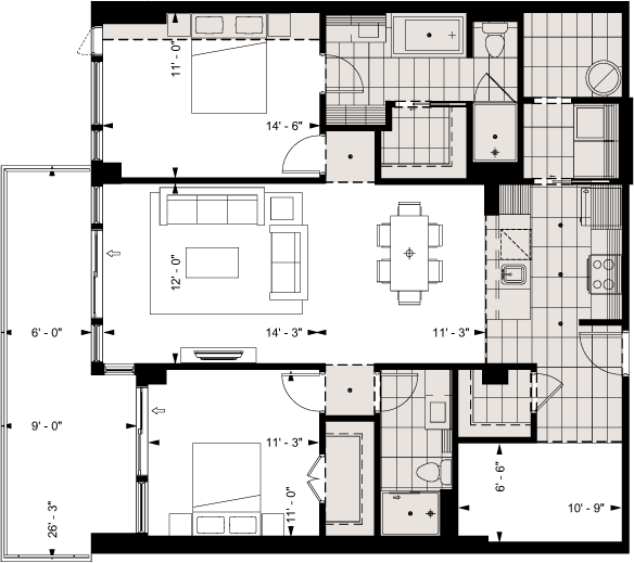
Unité 312

2 chambres + bureau

Superficie construite (brute) 1260 p.c.
Superficie habitable (nette) 1176 p.c.
Superficie terrasse 189 p.c.

télécharger le PDF