fermer
logement-405

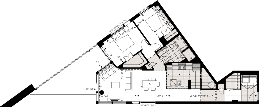
Unité 405

2 chambres

Superficie construite (brute) 1130 p.c.
Superficie habitable (nette) 1025 p.c.
Superficie terrasse 231 p.c.

télécharger le PDF