fermer
logement-702

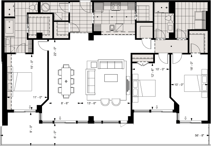
Unité 702

3 chambres

Superficie construite (brute) 1814 p.c.
Superficie habitable (nette) 1692 p.c.
Superficie terrasse 400 p.c.

télécharger le PDF