fermer
logement-703

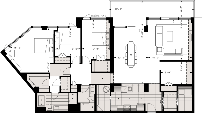
Unité 703

3 chambres + bureau

Superficie construite (brute) 1910 p.c.
Superficie habitable (nette) 1775 p.c.
Superficie terrasse 215 p.c.

télécharger le PDF