fermer
logement-804

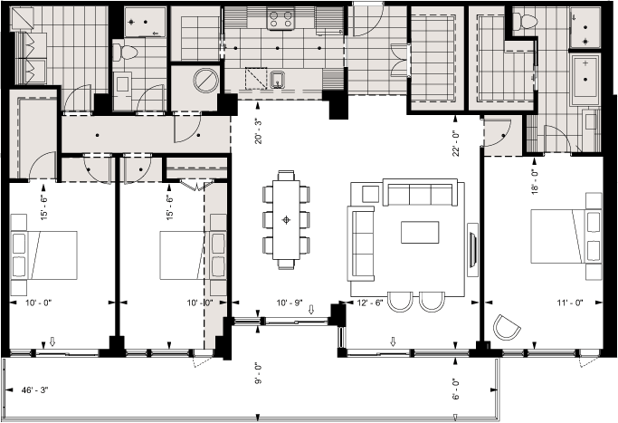
Unité 804

3 chambres

Superficie construite (brute) 1898 p.c.
Superficie habitable (nette) 1763 p.c.
Superficie terrasse 309 p.c.

télécharger le PDF