fermer
logement2-102

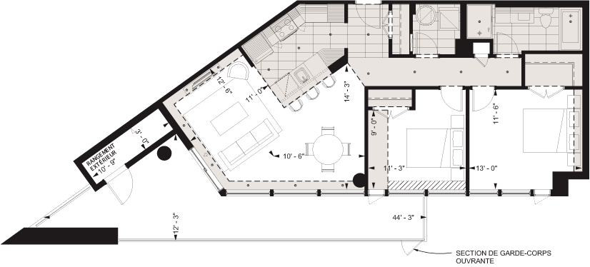
Unité 102

2 chambres

Superficie construite (brute) 1045 p.c.
Superficie habitable (nette) 940 p.c.
Superficie terrasse 272 p.c.

télécharger le PDF