fermer
logement2-103

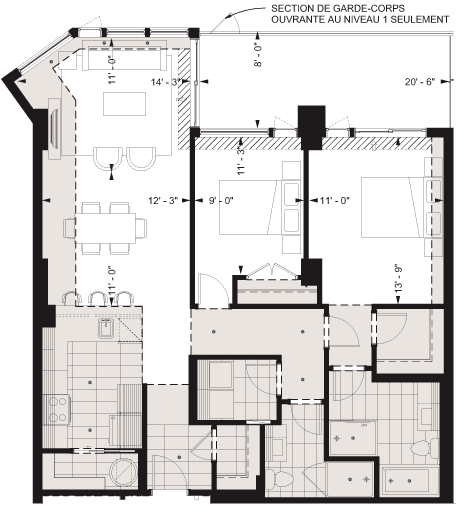
Unité 103

2 CHAMBRES

Superficie construite (brute) 1159 p.c.
Superficie habitable (nette) 1075 p.c.
Superficie terrasse 160 p.c.

télécharger le PDF