fermer
logement2-105

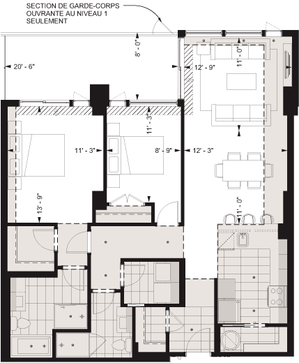
Unité 105

2 chambres

Superficie construite (brute) 1162 p.c.
Superficie habitable (nette) 1074 p.c.
Superficie terrasse 160 p.c.

télécharger le PDF