fermer
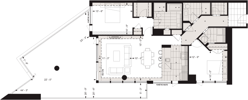
logement2-202

Unité 202

2 chambres

Superficie construite (brute) 1337 p.c.
Superficie habitable (nette) 1194 p.c.
Superficie terrasse 616 p.c.

télécharger le PDF