fermer
logement2-209

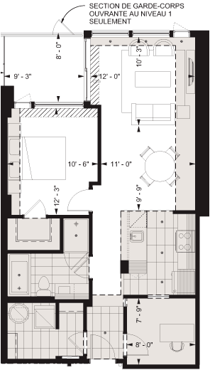
Unité 209

1 chambre + bureau

Superficie construite (brute) 832 p.c.
Superficie habitable (nette) 742 p.c.
Superficie terrasse 72 p.c.

télécharger le PDF