fermer
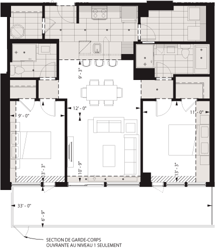
logement2-304

Unité 304

2 chambres 

Superficie construite (brute) 1042 p.c.
Superficie habitable (nette) 948 p.c.
Superficie terrasse 222 p.c.

télécharger le PDF