fermer
logement2-406

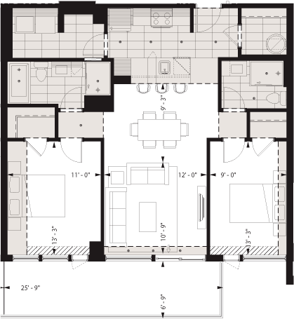
Unité 406

2 CHAMBRES

Superficie construite (brute) 1041 p.c.
Superficie habitable (nette) 948 p.c.
Superficie terrasse 173 p.c.

télécharger le PDF