fermer
logement2-407

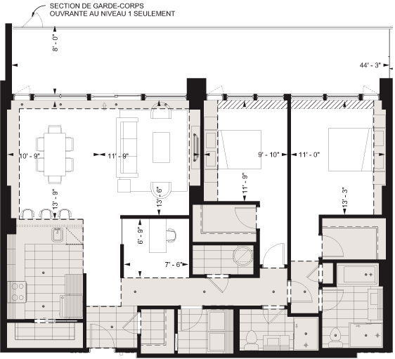
Unité 407

2 chambres + bureau

Superficie construite (brute) 1393 p.c.
Superficie habitable (nette) 1304 p.c.
Superficie terrasse 347 p.c.

télécharger le PDF