fermer
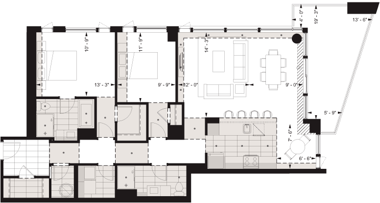
logement2-411

Unité 411

2 CHAMBRES

Superficie construite (brute) 1360 p.c.
Superficie habitable (nette) 1234 p.c.
Superficie terrasse 177 p.c.

télécharger le PDF