fermer
logement2-509

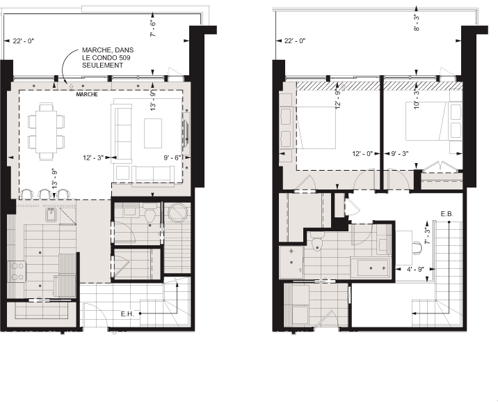
Unité 509

2 chambres + BUREAU

Superficie construite (brute) 1432 p.c.
Superficie habitable (nette) 1178 p.c.
Superficie terrasse 178 p.c.

télécharger le PDF