fermer
logement2-606

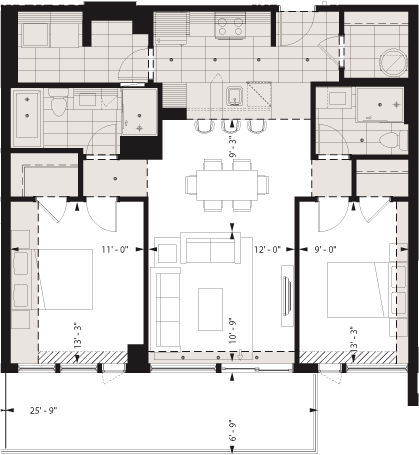
Unité 606

2 chambres

Superficie construite (brute) 1041 p.c.
Superficie habitable (nette) 948 p.c.
Superficie terrasse 173 p.c.

télécharger le PDF