fermer
logement2-611

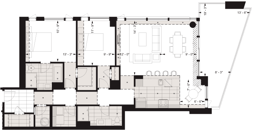
Unité 611

2 chambres

Superficie construite (brute) 1360 p.c.
Superficie habitable (nette) 1234 p.c.
Superficie terrasse 243 p.c.

télécharger le PDF