fermer
logement2-803

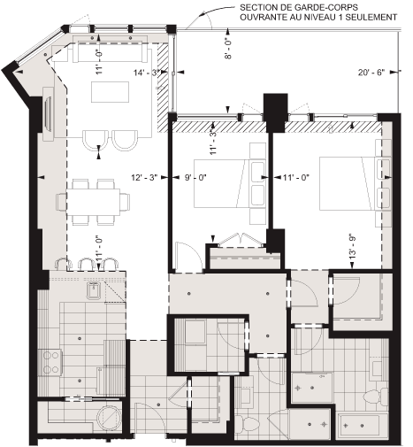
Unité 803

2 chambres

Superficie construite (brute) 1159 p.c.
Superficie habitable (nette) 1075 p.c.
Superficie terrasse 160 p.c.

télécharger le PDF