fermer
logement2-808

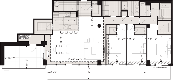
Unité 808

3 chambres

Superficie construite (brute) 1891 p.c.
Superficie habitable (nette) 1737 p.c.
Superficie terrasse 506 p.c.

télécharger le PDF